福岡県行橋市稲童3785番1|180万円の土地|行橋豊栄不動産

TEL : 0930-23-1079
  • 休業日日曜日・祝日
  • 受付時間平日:9:00〜17:00 土曜:9:00〜12:00
TOPページ
物件検索
土地
>
行橋市
>
JR日豊本線
福岡県行橋市の土地

土地

福岡県行橋市の土地NEW

お気に入り
価格 180万円 ローンシミュレーション
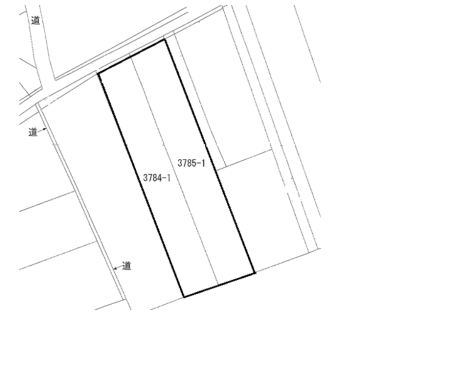
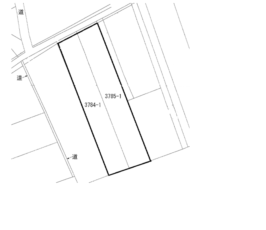
所在地 福岡県行橋市稲童3785番1
この地域周辺の物件を見る
土地面積 817m² (公簿) (247.14坪) 坪単価 0.73万円 /坪
交通
JR日豊本線 新田原 徒歩38分
建ぺい率 - % 容積率 - %
ここがおすすめ

-

お問い合わせ、資料請求、見学のお申し込みはこちらから

電話をかける(携帯・PHS可)
0930-23-1079
「ホームページを見た」とお伝え下さい。

お問い合わせ番号をお伝えください
RHS-20260424-002

内見予約
お問合せ

セールスポイント

特徴
  • 新着物件
セールスコメント -

物件概要

建築条件 - 土地権利 所有権
現況/引渡し 更地/相談 接道状況 接道: 北西 4m 公道
私道負担面積 - セットバック -
地勢 地目
用途地域 指定なし 都市計画 非線引き
法令上の制限 - 国土法届出 -
取引態様 一般媒介
情報更新日 2026年04月24日 次回更新日 2026年05月08日
※各種情報と差異がある場合は現況優先となります

学区情報

小学校区 行橋市立仲津小学校
(福岡県行橋市)
この学区の他の物件を見る
中学校区 仲津中学校
(福岡県行橋市)
この学区の他の物件を見る
※物件情報の学区情報について
当サイト物件情報に記載されております通学区域(学区)情報は、国土数値情報ダウンロードサービスが提供する小学校区データ【2021年度】及び中学校区データ【2021年度】を元に加工したものですので、記載情報が現在の学区域と異なる場合がございます。
国土数値情報ダウンロードサービスのWEBサイト上で記述通り、データは必ずしも正確とは言えません。また、通学区域(学区)は毎年見直しの対象となりますので、そちらを踏まえ学区情報は参考としてご活用下さい。

お問い合わせ、資料請求、見学のお申し込みはこちらから

電話をかける(携帯・PHS可)
0930-23-1079
「ホームページを見た」とお伝え下さい。

お問い合わせ番号をお伝えください
RHS-20260424-002

内見予約
お問合せ

この物件でローンシミュレーションする

価格 万円
年利率
ボーナス払い 返済年数
頭金 直接入力する 万円

毎月のご返済額

ボーナス(×年2回)

物件価格

180万円
※返済金額はあくまでも目安です。
  • こちらの物件を見たお客様はこんな物件もチェックしています。
  • お気に入り物件

電話をかける(携帯・PHS可)
0930-23-1079
「ホームページを見た」とお伝え下さい。

お問い合わせ番号をお伝えください
RHS-20260424-002

内見予約
お問合せ

お問い合わせ

  1. 1
    内容入力
  2. 2
    内容確認
  3. 3
    完了
お問合せ内容必須
【その他】
例)物件価格以外の費用を知りたい
リフォーム暦を知りたい
修繕計画について知りたい
○○小学校の学区内で他に物件はありませんか?
お名前必須
メールアドレス必須

※ご記入いただいたメールアドレス宛てに、お問合せ内容の確認メールをお送りいたします。
※Yahoo!メールなどのフリーメールをご利用の場合、迷惑メールフォルダに入る場合があります。
 迷惑メールのフォルダ・設定等をご確認下さい。
電話番号必須
FAX(任意)
※ご入力いただいたお客さまの個人情報は、「個人情報の取扱いについて」に基づき適正に取り扱います。
必ずお読みになり、同意の上お問い合わせください。

お気軽にお問い合わせください

0930-23-1079
物件番号 RHS-20260424-002
※「ホームページを見た」
とお伝え下さい。

お役立ち機能

この物件を
携帯で確認!

MAPから物件を検索
  • エリアから探す
  • 行橋市で探す
  • 築上町で探す
  • みやこ町で探す
  • その他
価格から探す
不動産について
  • スタッフ紹介
  • 賃貸物件情報
店舗紹介
  • 有限会社行橋豊栄不動産
  • TEL:0930-23-1079
  • FAX:0930-23-1080
  • 〒824-0005 福岡県行橋市
    中央一丁目2番7号 ユクホウビルY7-1F
  • 営業時間:
    平日 09:00〜17:00
    土曜 09:00〜12:00
  • 休業日:日・祝
  • 会社概要
  • アクセスMAP
スマホ対応